1、引言
现实的生活和实验中,常常要用到各种各样的电源,电压要求多样。如何设计一个电压稳定,输出电压精度高,并且调节范围大的电压源,成了电子技术应用的热点。在市面上,各种电源产品各式各样,有可调节的和固定的。但是普遍存在一些问题,如转换效率低,功耗大,输出精度不高,可调节范围过小,不能满足特定电压的要求,输出不够稳定,纹波电流过大,并且普遍采用可调电阻器调节,操作难度大,易磨损老化。
针对以上问题,本文采用基于KA3525 PWM控制芯片的不对称半桥式功率变换器,并采用16位凌阳单片机作为数控核心,通过其内置的D/A输出调制PWM,提高了电源的输出精度和效率,并且方便使用者操作,实现了基于单片机的数控开关电源。
本数控开关电源,采用凌阳单片机实现对基于PWM控制的不对称半桥式功率变换器的数字控制,实现直流输出电压0V~40V设定和步进值为1连续调整,最大输出电流为2A。同时实现了对输出电压和输出电流的显示等功能。系统框图如图1所示。系统主要包括: PWM控制的开关电源模拟电路部分和凌阳单片机组成的数控部分。

3、基于PWM控制的开关电源设计
PWM控制的开关电源电路原理如图2所示。主要包括EMI滤波电路、整流滤波电路、功率变换电路、驱动电路、输出电路、稳压电路、过流保护电路以及辅助电源电路等。

图2 PWM控制的开关电源原理图
3.1 EMI滤波电路
EMI滤波器如图3所示电路。该滤波器有两个输入端、两个输出端和一个接地端。电路包括快速保险丝F1,泄放电阻R1,共模电感L1、L2,滤波电容C1、C2、C8、C9。泄放电阻R1可将C1上积累的电荷泄放掉,避免因电荷积累而影响滤波特性;断电后还能使电源的进线端不带电,保证使用的安全性。共模电感L1-1、L1-2对差模干扰不起作用,对共模信号呈现很大的感抗。C1、C9主要用来抑制差模干扰。C2、C8跨接在输出端,经过分压后接地,能有效的抑制共模干扰。

图3 EMI滤波电路
3.2整流滤波电路
常用整流电路有半波、全波、桥式、倍压整流等形式。本文采用桥式整流电路,电路如图4所示。图中 C3、C10两个电容分别用于滤除整流后的高低频成分。

图4 整流滤波电路
3.3 功率变换电路
功率变换电路采用不对称半桥功率变换器,如图5所示。图5(a)所示电路开关管M1导通、M2截止,电容C4放电。图5(b)所示电路开关管M2导通、M1截止时,电容C4充电。图中R1、R2、R6、R7在开关管关断时为泄放电阻,用来泄放开关管结电容电压。C4为储能电容,电容容量不能低于2μF,否则会降低系统带载能力。

(a)

(b)
图5 不对称半桥功率变换器电流流向图
3.4驱动电路
PWM信号产生芯片采用KA3525,它是一个典型的性能优良的开关电源控制芯片。其内部包括误差放大器、比较器、振荡器、触发器、输出逻辑控制电路和输出三极管等环节。KA3525的1和2脚是内部运算放大器的输入端,系统中单片机的D/A转换接口的一个引脚与KA3525的2脚连接,实现KA3525的数字控制与步进调整。11和14脚输出交替的两路控制信号,经驱动电路与功率开关管的门极相连接。本文采用的驱动电路如图6所示。当11脚输出高电平、14脚输出低电平时,N1、P2导通,耦合变压器原边电流流向如图6(a)所示。当14脚输出高电平、11脚输出低电平时,N2、P1导通,耦合变压器原边电流流向如图6(b)所示。图7为驱动电路耦合变压器的输出波形。

图6 不对称半桥驱动电路电流流向图

图7 驱动电路耦合变压器的输出波形
3.5输出电路
图8即为LC滤波电路。电路中电感L4使电流波形变得平滑,电容则起到稳压的作用。其中电容C1为低频滤波,电容C7为高频滤波。

图8 LC滤波电路
3.6稳压电路
如图2所示,输出电压经采样电阻采样调整后输入KA3525的1脚,与单片机设定的KA3525的2脚电压进行比较,以实现稳定输出电压。若输出电压升高,则采样电压大于2脚给定电压,KA3525输出的脉宽变窄,反之变宽。
3.7辅助电源电路
由于本电路中KA3525芯片和单片机分别需要12V和5V的直流电压,故须设计辅助电源,其电路如图9所示。 辅助电源输出采用三端稳压器7812和7805实现12V和5V的直流电压。

图9 辅助电源电路
4、基于凌阳单片机开关电源的数控设计
本文数控部分采用凌阳公司的SPCE061A进行控制。SPCE061A主要包括输入/输出端口、定时器/计数器、数/模转换、模/数转换、串行设备输入输出、通用异步串行接口、低电压监测和复位等部分。SPCE061A单片机应用领域非常广泛。
本文利用SPCE061A单片机内部10位的A/D、D/A实现对输出电压的步进控制和测量以及输出电压和电流的显示功能。采用RT12864液晶显示,与单片机相连接,单片机的IOB0~IOB7的数据口与LCD的DB0~DB7相连接,IOB8为RS,IOB9为R/W,IOB10为E,IOB11为RST。连接方式如图10所示:

图10 RT12864与SPCE061的连接
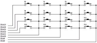
输入键盘控制电路采用4×4矩阵式非编码键盘电路,与单片机进行连接。单片机的IOA8~IOA11做键盘的行扫描输出口,IOA12~IOA15做键盘的列扫描输入口。如图11所示:

图11 4×4矩阵键盘
KA3525的2脚是一个控制PWM波占空比的引脚,与SPCE061A单片机DAC1/DAC2引脚链接,利用集成的其中1个10位的D/A转换器,给2脚提供精确的给定电压,给2脚的电压越高,KA3525输出的PWM波的占空比就越大,开关管导通的时间就越长,稳压源输出电压就越高,反之电压降低。从而可根据需要通过程序实现对输出电压的数字给定和步进调整,达到数控的目的。
5、试验验证及结论
为了验证设计的可行性,进行了硬件实验和程序调试。稳压源的输出电压由KA3525芯片2脚的电压决定。试验中发现KA3525的2脚电压与输出电压成非线性关系,因此需要多次调试确定2脚电压与输出电压的值以实现单片机的数字给定和步进调整,本文给出了部分KA3525的2脚输入电压与输出端电压对应值。对应关系如表1所示。

表1 KA3525的2脚输入电压与稳压源输出电压的关系
经过计算KA3525的2脚所需要输入的电压并将其转化成单片机所需要的10位数字量,最后SPCE061A单片机将10位数字量左移6位写入P_DAC1单元的高10位,进行D/A转换成相应的3525芯片2脚给定电压,实现对开关电源的步进调整。采样电压经A./D转换后送LCD显示,显示精度可达0.01V。经多次测试,本电源输出电压可以0V~40V连续调整,歩进值0.1V, 最大输出电流可达I0MAX=2.5A,电压调整率Su=0.1%,负载调整率SI=0.2%,效率η=90%,试验结果表明本数控电源方案切实可行。
